the PROCESS
-

CONCEPT
-

2D + 3D DRAWINGS
-

CUSTOM FURNITURE
-

DECOR
CONCEPT
Here is where ideas take shape; combining inspiration images, materials, and textures to establish a cohesive vision. This stage sets the foundation for the design process, ensuring every detail aligns with the project's aesthetic and functional goals.
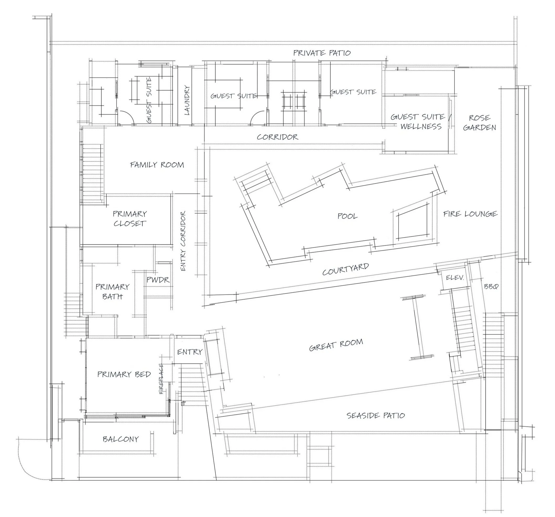
2D + 3d Drawings
The 2D plan serves as the foundation for materials and furniture selection. Gradually transforming into a fully rendered 3D model, clients can fully immerse themselves into the space.
Elevation - Conceptual Phase
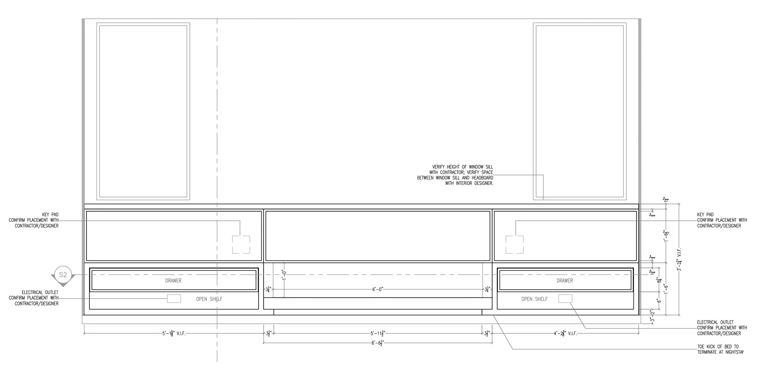
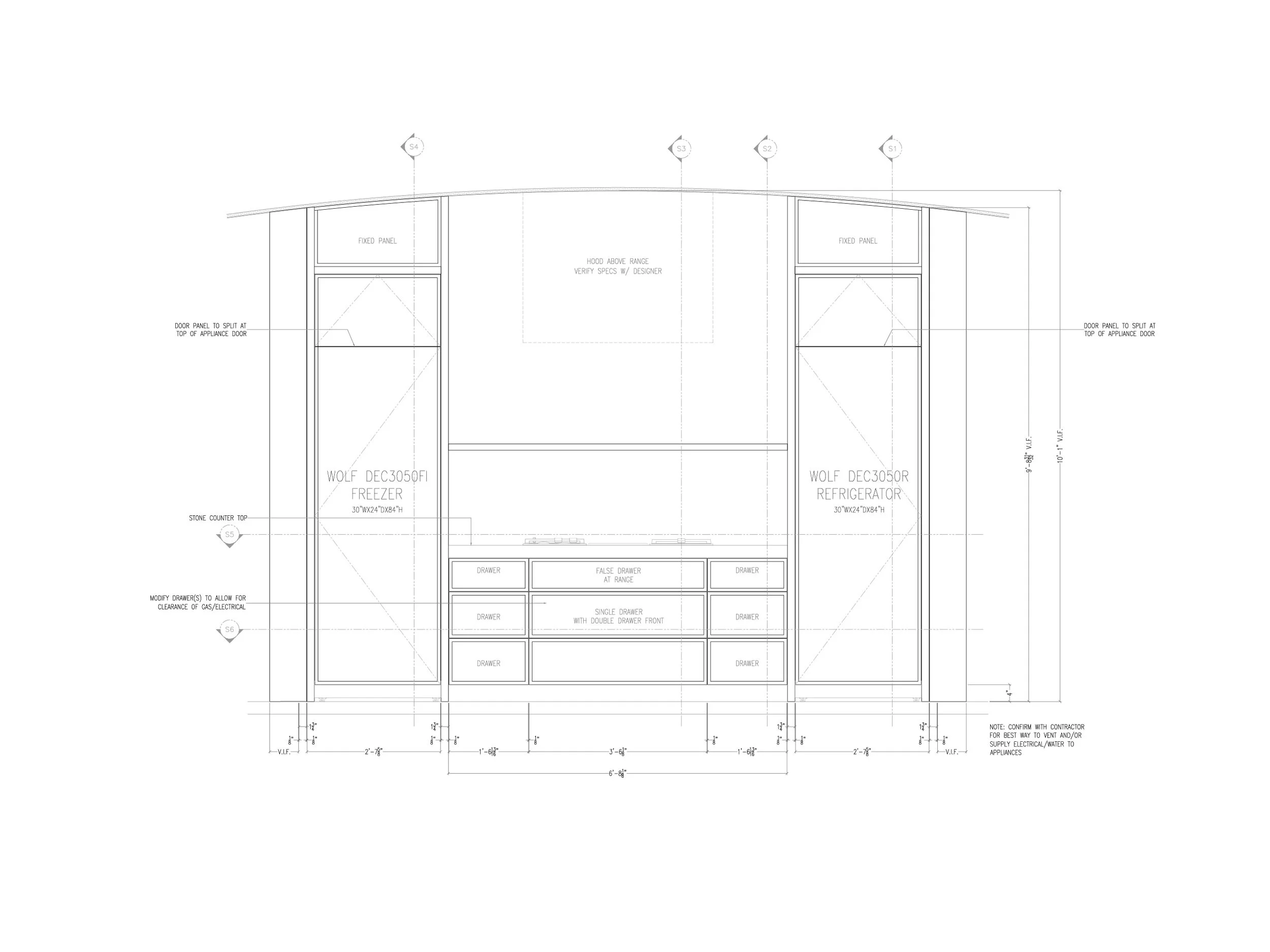
Once the design team and client finalize the finishes and design details, technical drawings are created to prepare the pieces for production.
Technical Drawing - Documentation Phase
The Final Product
custom furniture
3D Drawing - Conceptual Phase
Technical Drawing - Documentation Phase
The Final Product
decor
The decor phase brings a space to life by curating furniture and accessories. A blend of made-to-order and vintage pieces ensures each detail aligns with the client’s and designer’s vision.
*All drawings produced while working for Table Thirty Three
The Final Product

